Showcasing my Academic Projects
Explore a selection of my academic projects, demonstrating my passion for architectural technology and technical design. Each project highlights my commitment to detail and innovative problem-solving.

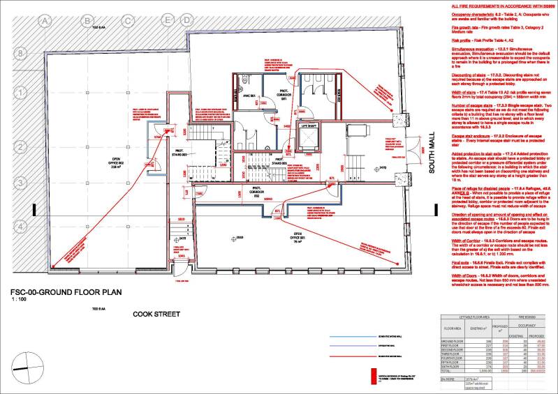
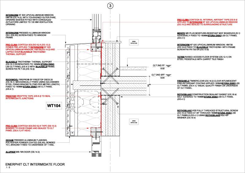
Year 4: 67–68 South Mall Retrofit Project
This project involved the detailed technical analysis and redevelopment of an existing building at 67–68 South Mall. The initial phase focused on understanding the existing structure, façade, and surrounding context to identify key constraints and opportunities for intervention. The proposal included the removal of adjoining buildings to the rear and the introduction of a new CLT extension, integrating modern construction methods with the retained structure.
My role focused on the development of coordinated technical drawings, including general arrangement drawings, façade systems, and detailed construction junctions. I produced 1:5 and 1:10 detailing addressing key areas such as wall build-ups, window interfaces, and structural connections.
I also developed drawings in line with Irish Building Regulations, with particular reference to TGD Part B (Fire Safety) and Part M (Access and Use), ensuring compliance in areas such as escape strategy, compartmentation, and accessibility. The project demonstrates a strong understanding of buildability, regulatory compliance, and the integration of new and existing construction.

Year 3: Multi-Storey Office Building, Dawson Street, Dublin
In Year 3, I completed a detailed design project focused on the construction of a multi-storey office building on Dawson Street, Dublin. The project involved producing a comprehensive set of technical drawings, including site plans, floor plans, sections, and construction details. In addition, I developed project scheduling information, demonstrating an understanding of construction sequencing and programme coordination. The design placed a strong emphasis on buildability, regulatory compliance, and the integration of structural and envelope systems.