Technical Skills

  • Technical drawing production
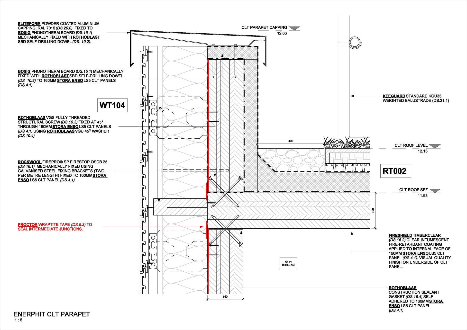
  • Construction detailing (1:5 / 1:10)
  • General arrangement drawings
  • BIM modelling (Revit)
  • Retrofit & existing building analysis
  • Façade / envelope detailing
  • Building regulations (TGD B, M, etc.)

Construction Knowledge

  • Irish Building Regulations
  • NZEB principles
  • Material understanding (CLT, steel, concrete)
  • Buildability & detailing
  • Fire safety & accessibility

Software Skills

BIM & Modelling

  • Revit
  • SketchUp

Drawing & Documentation

  • AutoCAD

Analysis & Coordination

  • Navisworks
  • BuildDesk
  • DEAP

Presentation

  • Photoshop

Professional Skills

 

  • Attention to detail
  • Organisation
  • Communication
  • Team collaboration
  • Time management